您所在的位置: 下载吧  >  软件教程  >  编程开发

编程开发

  • AUTOcad2008基础教程之创建文件

    AUTOcad2008基础教程之创建文件
    AUTOcad2008是一款经典的CAD图像绘制软件,AUTOcad广泛用于各行各业中,似乎都已成为业界标准。今天小编就给大家带来AUTOcad经典版本AUTOcad2008的基础教程之在AUTOcad2008软件下创建文件。
    编程开发】 2014-06-16
    浏览903次
  • AUTOcad2008基础教程之认识工作界面

    AUTOcad2008基础教程之认识工作界面
    AUTOcad2008是一款经典的CAD图像绘制软件,AUTOcad广泛用于各行各业中,似乎都已成为业界标准。今天小编就给大家带来AUTOcad经典版本AUTOcad2008的基础教程之认识AUTOcad2008的工作界面。
    编程开发】 2014-06-16
    浏览744次
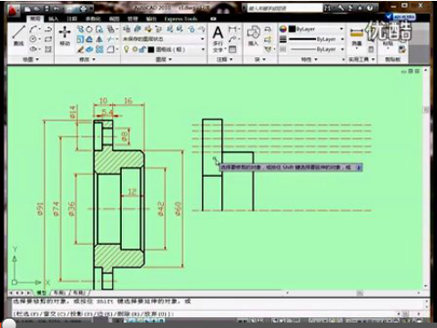
  • AutoCAD技巧之Shift键在AUTOCAD中的几招妙用

    AutoCAD技巧之Shift键在AUTOCAD中的几招妙用
    对于使用AutoCAD画图,最重要的是什么?对这个问题,每个人都有可能理解不同,但在我看来,最重要的是时时刻刻记住自己使用AutoCAD画图的目的是什么。在AUTOCAD软件中,可以利用的字库有两类。一类是存放在AUTOCAD目录下的Fonts中,字库的后缀名为shx,这一类是CAD的专有字库,英语字母和汉字分属于不同的字库。
    编程开发】 2014-06-16
    浏览4207次
  • AUTOcad2008基础教程之启动关闭AUTOcad

    AUTOcad2008基础教程之启动关闭AUTOcad
    AUTOcad2008是一款经典的CAD图像绘制软件,AUTOcad广泛用于各行各业中,似乎都已成为业界标准。今天小编就给大家带来AUTOcad经典版本AUTOcad2008的基础教程之启动和关闭AUTOcad2008。
    编程开发】 2014-06-16
    浏览987次
  • AutoCAD实例操作之镜像偏移命令

    AutoCAD实例操作之镜像偏移命令
    AutoCAD在使用偏移命令或者是镜像命令的时候出现一些比较困难的问题,那么我们就来讲讲AutoCAD实例操作之镜像偏移命令的具体操作吧。
    编程开发】 2014-06-10
    浏览1314次
  • AutoCAD基础之如何改变十字光标的尺寸

    AutoCAD基础之如何改变十字光标的尺寸
    在AutoCAD使用过程中,在AutoCAD中如何改变十字光标的尺寸呢?今天我们就来学习一下如何在AutoCAD中改变十字光标的尺寸。
    编程开发】 2014-06-10
    浏览1691次
  • AutoCAD基础之导入excel表格

    AutoCAD基础之导入excel表格
    在AutoCAD中导入excel表格有尝试吗?今天我们就来尝试一下在AutoCAD里导入excel表格,下面我们一起来看吧:
    编程开发】 2014-06-10
    浏览6260次
  • AutoCAD实例之点过滤功能的应用

    AutoCAD实例之点过滤功能的应用
    AutoCAD中的点过滤功能可以根据你所设定的值,比如线形、颜色、图层、文字等条件值来选择你所需要的元素。这样可以批量的一次性选择出。下面我们就一起来了解一下点过滤:
    编程开发】 2014-06-10
    浏览3492次
  • CAXA与AutoCAD数据之间的转换技巧

    CAXA与AutoCAD数据之间的转换技巧
    现在随着CAXA电子图板的广泛普及,越来越多的企业选择CAXA电子图板作为其产品的研发平台,但是原有的AutoCAD数据打开、编辑、修改和保存,保证电子图板EXB格式数据与DWG、DXF格式数据的直接转换,从而完全兼容企业历史数据,同时兼容AutoCAD的界面风格和使用习惯,实现企业设计平台的转换。是广大用户比较关心的问题,下面是我们日常收集到的常见问题和解决办法,希望可以帮助到你。
    编程开发】 2014-06-10
    浏览26595次
  • AutoCAD2015中文版超详细安装激活图文教程

    AutoCAD2015中文版超详细安装激活图文教程
    刚刚发布的AutoCAD2015是Autodesk公司出品的CAD软件,借助AutoCAD支持演示的图形、渲染工具和强大的绘图和三维打印功能,您的设计将会更加出色。在新版AutoCAD2015在界面的美化方面变化大,命令的容易性,方便性有些改进。现在还有不少人不会安装和激活,现在就跟随小编一起来学习新版AutoCAD2015的安装和激活吧。PS:目前新版本的CAD2015不支持XP系
    编程开发】 2014-06-10
    浏览26800次

本周最热