旋风CAD编辑器是一款功能强大、体积轻量且专业实用的CAD图纸编辑软件,该软件内置丰富齐全的CAD编辑工具,可进行CAD快速编辑,支持CAD浏览查看功能,可以添加本地CAD文件和进行CAD文件创建制作,然后对CAD文件进行2D、3D模式CAD文件浏览,同时该软件还支持CAD文件测量、快速标注、文件打印等功能,可让用户进行高效便捷且专业的CADCAD图纸编辑和打印;旋风CAD编辑器支持DWG、DXF等常见CAD格式一键添加,同时该软件还支持CAD文件文字查找、图纸放大、CAD图纸各项参数自定义等操作,是一款非常方便实用的CAD图纸编辑软件。

CAD图纸设计
2d、3d图纸浏览
实体填充
图层
将图像转换为OLE对象
黑色索引颜色
文字识别
自动修正DWG/DXF文件中的数据
自动加载红线
切换模式时警告
操作简单 效率更高
一键切换编辑模式与查看模式,多格式支持
功能丰富且实用
除了浏览编辑之外,还可以打印,转换,标注,测量等常见CAD功能
便捷的操作工具
结构面板显示选定对象的信息,包括其整体尺寸、体积、面积等
属性面板显示三维模型中选定对象的属性
距离、边和面积测量工具允许测量两点之间的距离、两个平行表面之间的高度、半径以及表面积
1、完成软件安装双击软件即可启动软件进入软件操作界面

2、点击软件左上角的文件按钮进入文件新建、打开、保存、打印等功能操作界面

3、点击三维看图可以进行CAD图纸3d图纸浏览

4、点击编辑器按钮可以对CAD图纸进行编辑设计

5、点击高级按钮可以对图纸进行数学报告、绘图统计、属性设置等操作

6、点击输出按钮可以对图纸进行输出设置、打印、打印预览、出图设置等操作

7、点击保存为PDF格式文档按钮可以将CAD图纸保存为PDF文件

8、点击打印按钮弹出打印弹框,该弹框可以设置打印设备和文件打印范围

9、点击设置按钮弹出软件设置弹框,该弹框可以进行软件功能设置

旋风CAD编辑器的用户能够测量两点之间的距离、面积和周长,并且能够快速直观地设置测量的比例因子。测量结果显示在“测量”面板中,并在命令行历史记录中复制。更多关于测量工具见于测量章节。
它是如何工作的?
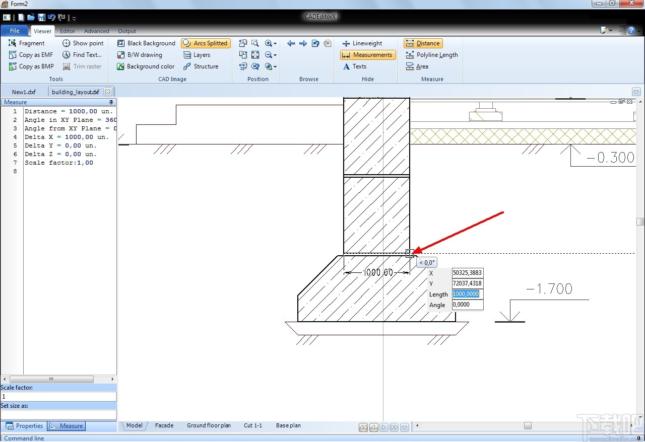
例如,在测量图纸中缺失的尺寸时需要考虑图纸中的比例尺。为此,使用“设置大小”功能很方便。要计算绘图比例,首先应测量如图所示的已知距离:

图像4。测量已知距离计算比例尺
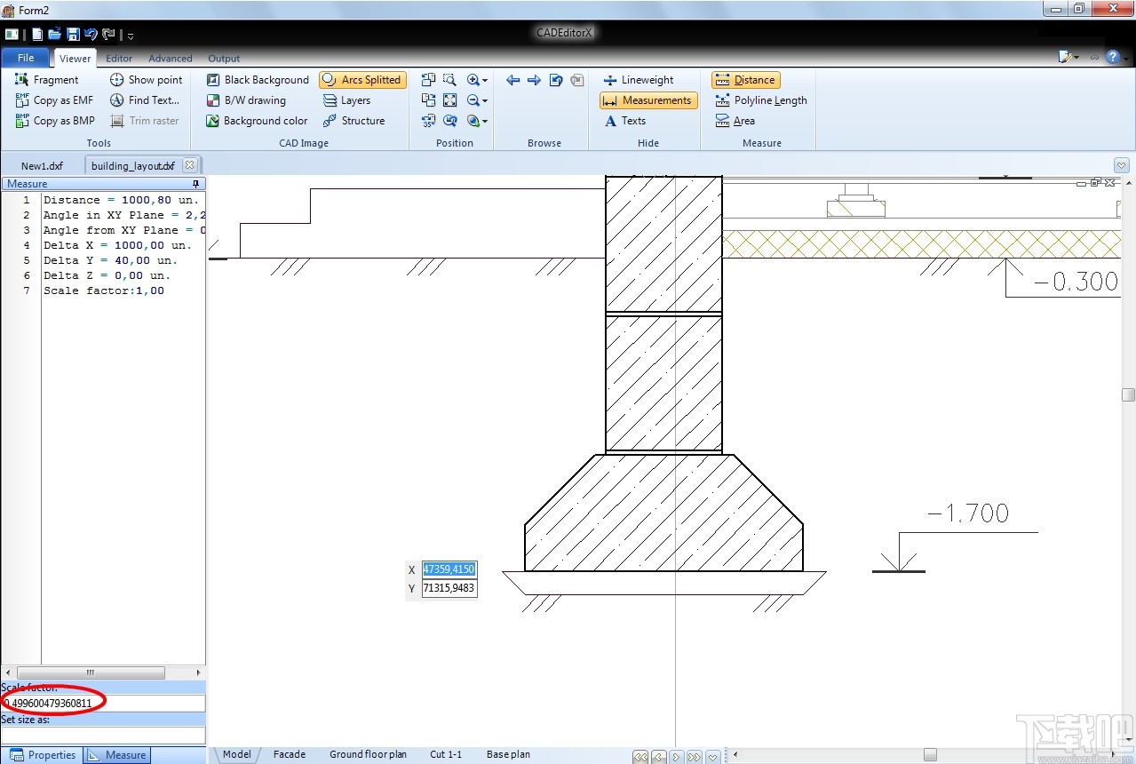
然后在“测量”面板中,有必要在“设置大小为”字段中输入实际值“500”,并按回车键。比例因子值将被重新计算,并在进一步的测量中参照该比例尺。

图像5。输入实际值以计算比例因子
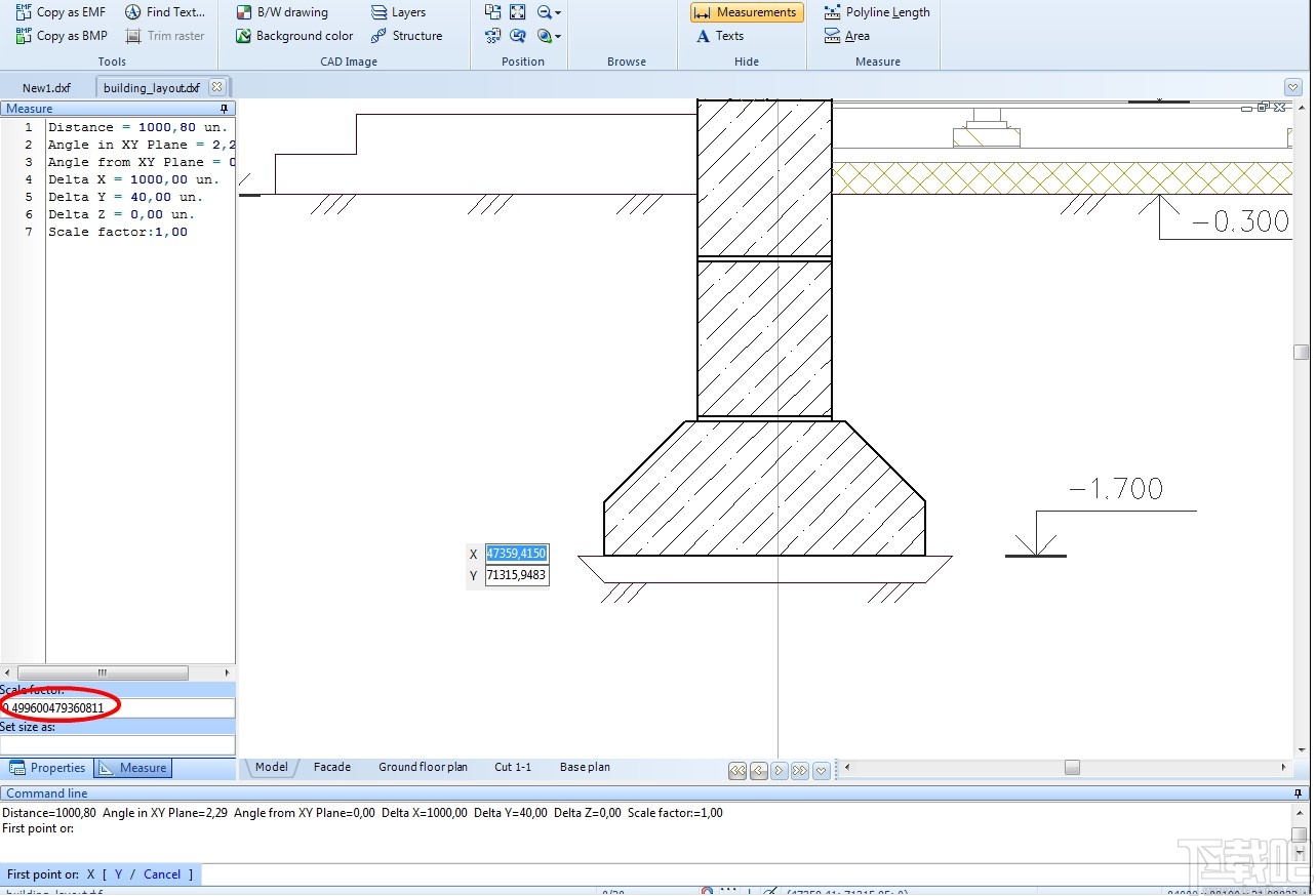
对基础进行测量。

图像6。借助计算的比例因子测量图纸
旋风CAD编辑器
旋风CAD编辑器不仅允许您查看3D文件并将其转换为其他文件格式,还允许您获取关于3D模型零件的信息,测量模型零件的体积、距离和尺寸。您可以使用以下工具:
结构面板显示选定对象的信息,包括其整体尺寸、体积、面积等。
属性面板显示三维模型中选定对象的属性。
距离、边和面积测量工具允许测量两点之间的距离、两个平行表面之间的高度、半径以及表面积。
所选对象的详情显示在结构和属性面板中。要获取更多详细信息,您可以使用位于“测量”组的“查看器”选项卡中的测量工具。

如何获得3D模型的整体尺寸?
如何获得模型部分的体积?
如何测量STEP和IGES文件的长度?
如何在STEP和IGES文件中测量半径?
如何测量高度?
如何测量面积?
如何获得3D模型的整体尺寸?
在STEP和IGES文件中,3D模型的对象可以分组。旋风CAD编辑器显示模型零件的面(表面)和包含它的组的整体尺寸。要获取3D模型零件的尺寸,请执行以下操作:
1.运行旋风CAD编辑器并打开一个IGES或STEP文件。
2.如果未显示结构面板,请在查看器选项卡上选择结构命令。
3.用鼠标左键单击要获取的模型零件整体尺寸。例如,你需要知道螺栓的尺寸。用鼠标左键单击其可见部分:

4.在结构面板中可以看到,选择的不是整个模型零件,而是名为Face_BD09的螺栓面。要选择螺栓结构中包含的所有元素,请在结构面板中选择该面的父元素。使用对象树上方显示的对象的完整路径很方便。在给定的示例中,显示路径中父对象的名称如下:BOLT_...。当您用鼠标左键单击它时,包含在该组中的对象将在图形中高亮显示。


5.选定模型零件的尺寸显示在属性面板中Box分区。您也可以在结构面板的底部查看它们:

如何获得模型部分的体积?
要获取整个3D模型的体积,请执行以下操作:
1.运行旋风CAD编辑器并打开一个3D模型。
2.在结构面板中,用鼠标左键选择需要知道其体积的元素组。选定的组件在图形中高亮显示。
3.在结构面板的底部,将显示选定对象组的属性,如体积、面积、质心等。这些参数也显示在属性面板中。

如何在STEP和IGES文件中测量长度?
使用距离工具测量两点之间的距离。如果你需要知道边的长度,你应该使用边工具。
要获取边长,请执行以下操作:
1.在“查看器选项卡的度量组,选择边工具。之后,浮动测量面板打开。您可以将它移动到程序窗口的任何边框。在边测量模式下,当您用光标指向3D模型的边时,它们会高亮显示。
2.用鼠标左键单击需要测量长度的边。该尺寸将添加到模型和测量面板中:

3.要隐藏尺寸,请在测量面板中取消选中所需的尺寸。
4.要删除尺寸,请用鼠标左键在图纸中选择它,然后按删除,或者在测量面板中选择尺寸,然后在上下文菜单中选择删除命令。
要获取两点之间的距离,请执行以下操作:
1.查看器选项卡上的测量组中,选择距离工具。
2.用鼠标左键选择第一个点。它将被突出显示。
3.用鼠标左键选择第二个点。
4.因此,尺寸将被添加到图形和测量面板中。

如何在STEP和IGES文件中测量半径?
要测量圆或圆弧的半径,可以使用边工具。
1.查看器选项卡上的测量组中,选择边工具。
2.用鼠标光标指向圆弧并用鼠标左键选择它。
3.半径值将添加到模型和测量面板中。

如何测量高度?
使用距离工具测量两个平行表面之间的高度。
1.查看器选项卡上的测量组中,选择距离命令。
2.用鼠标左键在第一个表面上选择一个点。
3.用鼠标左键在第二个表面上选择一个点。
4.作为测试结果
CAD迷你编辑器
50.6 MB/2020-08-17CAD迷你编辑器是一款小巧的DWG文件查看器,主要提供CADDWG、DXF、DWT图纸的浏览、简易编辑与转换功能,使用本软件在可以在不用打开AutoCAD的情况下就可以轻松完成图
DWG to WMF Converter MX
4.98 MB/2020-08-17DWGtoWMFConverterMX是一款可以将DWG直接转换为WMF,DXF到WMF和DWF到WMF的工具,它容易快速的转换DWG,DXF和DW
cad转pdf转换器
50.6 MB/2020-08-17互盾cad转pdf转换器主要提供CAD、DWG、DXF、DWT图纸的浏览、简易编辑、转换等实用功能,软件可以在不同的视图下浏览图纸,支持简易的编辑工作,最有特色的功能是提供DWG、
DWG to Image Converter MX
5.25 MB/2020-08-17DWGtoImageConverterMX一款无需AutoCAD软件,可以将DWG直接转换为PDF,DXF到图像和DWF到光栅图像文件,它能够快速的转换DWG,DX
中望CAD2015
247.68 MB/2020-08-17中望CAD2015融入了以“安全漏洞抓取、内存池优化、位图和矢量图混合处理”等多项可以极大提高软件稳定性和效率的中望正在申请全球专利的独创技术,新增了众多实用的新功能
caxa电子图板
967 MB/2020-08-17caxa电子图板2015是一款工程设计专业绘图工具和辅助设计工具。北京数码大方科技有限公司(CAXA)是中国领先的CAD和PLM软件供应商,拥有完全自主知识产权的系列化的CAD、C
浩辰CAD 2015
132.77 MB/2020-08-17浩辰CAD2015专业版作为全球极少数掌握CAD核心技术的世界级品牌,浩辰CAD凭借国际领先的产品品质,被业界誉为设计领域的成熟“Office”,荣获2010年世界知识产权组织(WIPO)版权
纬衡CAD2009
43.03 MB/2020-08-17纬衡CAD2009是一款国产CAD软件。纬衡CAD2009适用范围:可广泛应用于各种行业中的设计及绘图,包括建筑设计、市政规划、石油化工、电子、机械、汽车制造、航空航天、室内设计、服装设计等。
ABViewer
天正电气
纬衡CAD2009
CAD快速看图
CAD迷你编辑器
cad转pdf转换器
DWG to Image Converter MX
DWG to WMF Converter MX
AutoCAD2016
够力七星彩排列五奖表安装2015
新澳门彩波走势图
新澳2025正版资料
挑码助手安卓版
够力奖表助手下载安装2025
天天彩澳门天天彩
六盒宝典
新澳门彩单双走势
kk欢乐斗地主中文版
您可能感兴趣的专题
男生必备
男生们看过来!
安卓装机必备
女生必备
女生必备app是拥有众多女性用户的手机软件,作为一个女生,生活中像淘宝、京东这类线上购物软件可以说是少不了的,小红书这种穿搭、化妆分享平台也很受欢迎,类似于西柚大姨妈、美柚这种专为女生打造的生理期app更是手机必备,还有大家用的最多拍照美颜app是绝对不能忘记的,除此之外对于一些追星女孩来说,微博也是一个必不可少的软件。超多女生必备软件尽在下载吧!
迅雷看看使用教程
迅雷看看播放器是一款多功能在线高清多媒体视频播放器,支持本地播放与在线视频点播,采用P2P点对点传输技术,可以在线流畅观看高清晰电影。不仅如此,迅雷看看不断完善用户交互和在线产品体验,让您的工作与生活充满乐趣。
驱动精灵
驱动精灵是一款集驱动管理和硬件检测于一体的、专业级的驱动管理和维护工具。驱动精灵为用户提供驱动备份、恢复、安装、删除、在线更新等实用功能,也是大家日常生活中经常用到的实用型软件之一了。
拼音输入法
对于电脑文字输入,拼音输入法是一种非常受欢迎的输入法,搜狗拼音输入法、百度拼音输入法、QQ拼音输入法、谷歌拼音输入法、紫光拼音输入法、智能拼音输入法等,你在用哪款呢?一款好用适合自己的拼音输入法一定对您平时帮助很大!下载吧收集了最热门国人最喜欢用的拼音输入法给大家。
b站哔哩哔哩怎么使用
很多人都喜欢在b站哔哩哔哩上观看视频,不单是因为可以提前看到一些视频资源,B站的一些弹幕、评论的玩法也是被网友们玩坏了!下面下载吧小编带来了b站哔哩哔哩怎么使用的教程合集!希望能帮到你啦!
抖音短视频app
抖音短视频app,这里汇聚全球潮流音乐,搭配舞蹈、表演等内容形式,还有超多原创特效、滤镜、场景切换帮你一秒变大片,为你打造刷爆朋友圈的魔性短视频。脑洞有多大,舞台就有多大!好玩的人都在这儿!