广联达CAD快速看图是一款非常专业且优秀的CAD图纸浏览软件,通过这款软件,可帮助用户快速浏览CAD图纸,很多时候,我们都需要用到图纸,当您需要查看图纸文件时,一般的看图软件无法对CAD图纸文件进行查看,这时候就可以用到这款软件,软件功能丰富,且所有功能并排显示,便于您快速进行选择,并使得查看CAD图纸更加方便,可对图纸进行一系列的编辑操作,如画直线、标注等,还可将图纸进行旋转,从不同方位查看图纸,总之这是一款非常好用的软件,如果您有需要,那就赶快下载试试吧!

1、广联达CAD快速看图提供丰富的功能浏览图纸
2、将其他人发送给您的图纸打开就可以浏览图纸
3、提供测量功能,在软件可以测量图纸周长、面积
4、将设计的零件图纸或者是平面图添加到软件查看
5、支持图形识别功能,选择一个区域的图纸内容识别
6、支持画线标注功能,在审阅图纸的时候可以立即画线
7、支持标注设置,通过广联达CAD快速看图软件可以对图纸内容标注
8、支持文字查询功能,可以在CAD图纸上快速搜索文字
9、支持测量结果统计功能,将测量的数据汇总统计
开图迅速、显示准确
打开图纸更快速,无需字体,各版本图纸准确显示。
导入导出一键分享
本地或云盘图纸一键导出kkf文件,其他电脑或手机导入,即可看到图纸和标注
测量统计
自动统计测量的长度和面积,可按颜色统计或手动统计,结果导出表格
连续测量、异形面积
快速测量(直线+弧线)面积、长度。
提取文字、提取表格
一键框选,快速提取图纸文字和表格到Excel。
图形识别
图纸构件数个数,方便快捷。
图纸对比
图纸差异,一键对比。
天正转T3、版本转换
一键转T3,一键转版本,迅速便捷。
平台同步、协同操作
电脑、手机、平板全平台同步图纸和标注,团队协同,提高效率。
编辑助手
便捷强大的改图功能,方便进行轻量级改图。
1、打开软件,进入软件主界面,运行界面如下图所示

2、会员专享功能,购买会员后,即可使用显示的所有功能

3、点击打开,弹出选择图纸框,选择图纸文件,然后点击打开,由于小编电脑没有图纸文件,因此无法进行添加

4、可查看最近打开的文件,快速打开经常使用的一些文件,使用更方便

5、图层管理,图纸打开后,可以点击上方按钮或者图层列表中的灯泡来开关图层

6、登录CAD快速看图,可使用账号密码登录,也可使用短信快捷登录

7、图纸打开后,可对其进行测量,还可选择进行测量统计

8、打开两个不同的图纸文件,可将图纸进行对比,方便又快捷

9、图形识别、文字、画直线、形状、删除、隐藏标注、导入导出等

10、文字查找,可对图纸文件中的文字进行查找,根据需要进行选择

11、屏幕旋转,可将屏幕顺时针或逆时针旋转,自由进行选择

12、点击打印,可将需要的图纸文件进行打印,快速进行选择

注测量结果一键统计
自动统计测量的长度和面积,可按颜色统计或手动统计,结果导出表格
图纸差异一键对比
图纸差异,一键对比。速度飞快,显示清晰
异形面积想测就测
弧线+直线的异形面积,点击选取线段即可轻松测量,告别复杂勾选轮廓的方式
连续测量精准方便
快速测量多条线段总长(直线+弧线均可)
图形数量轻松统计
图形、图例一键数个数,从此算量更轻松
天正图纸一键转T3
天正图纸一键转t3,轻松解决导入算量软件显示不全的问题
一键分图方便快捷
一键分图,轻松解决图纸太大不能导入算量软件的问题
面积偏移一键缩放
在测量平面面积后,方便的进行面积的外扩或内缩
展开面积轻松计算
在测量平面面积后,可以进一步测量侧面积,方便快捷
1秒提取图纸表格
框选自动生成,瞬间完成表格制作
外部参照轻松搞定
一键轻松绑定+另存,告别图纸显示不全
一键布局转换模型
布局中图形一键转到模型中,方便您看图及导入算量软件
图层管理按需开关
一键关闭指定图层、一键保留指定图层,看图更轻松,图层开关更方便
图纸版本随意转换
图纸版本高低转换,再也不怕高版本图纸了
辅助直线方便简单
画直线辅助测量。直线可被测量,和原图纸线条相交产生交点,也可捕捉
快看云盘云端同步
电脑间同步、电脑和手机间同步、同事之间共享等,全平台同步图纸和标注
区域查找方便快捷
自由选择查找范围,快速锁定范围内的文字位置、统计数量
我测量和标注了一些内容后怎么保存?
软件是自动保存标注在设备本地的,关闭后下次打开就还能看到之前标注的内容。
如果遇到标注不见了的情况,可以参考以下几种情况解决:
1.是否更改了图纸名字
如果更改了图纸名字,那么,将名字改回去即可,标注内容是按照图纸名字识别显示的
2.是否更换了设备
目前有2种方式可以分享出去图纸和标注。(换设备也能查看标注)
1、【导入导出】适合2个人单纯的看一看图纸和标注,没有更频繁的业务往来。比如给领导、业主、甲方、监理临时看看标注。或者只想给同事看云盘里的某一张图纸,不想让他看到其他图纸,就可以使用导入导出。也可以将云盘图纸和标注下载到本地。
2、【快看云盘】适合有稳定项目成员,互相协同操作比较频繁,或者自己一个人在不同的设备间来回同步图纸。这种情况下,云盘更简单,更方便。


3. 如果名字和电脑都没换,看下是否安装了360
打开360安全卫士,找到系统瘦身功能,勾选上“文件搬家”,点击“查看”,将选中的文件取消选择即可关闭搬家功能。


然后打开桌面上的“计算机/我的电脑/此电脑”,找到“我的文档”中的“cadreader”文件夹的快捷方式,将其删除或重命名。

操作完成后,再用CAD快速看图添加标注就能成功保存了。
为什么用CAD快速看图标注了内容后换一台电脑看这个图就没有标注了呢?
标注的内容是保存在当时操作的设备本地的
目前有2种方式可以分享出去图纸和标注。(换设备也能查看标注)
1、【导入导出】适合2个人单纯的看一看图纸和标注,没有更频繁的业务往来。比如给领导、业主、甲方、监理临时看看标注。或者只想给同事看云盘里的某一张图纸,不想让他看到其他图纸,就可以使用导入导出。也可以将云盘图纸和标注下载到本地。
2、【快看云盘】适合有稳定项目成员,互相协同操作比较频繁,或者自己一个人在不同的设备间来回同步图纸。这种情况下,云盘更简单,更方便。
具体操作:
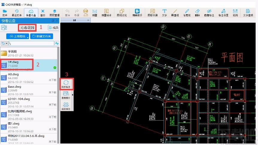
1.创建项目

2.双击打开项目,并将图纸上传到云盘

3.另一台设备上登录账号后,打开云盘中的这个图,再点一下“同步标注”就可以看到了

CAD快速看图电脑版V5.13.2.72
更新日期:2020年12月1日
更新说明:
解决部分异常图纸打开报错的问题
优化图纸显示
CAD迷你编辑器
50.6 MB/2020-08-17CAD迷你编辑器是一款小巧的DWG文件查看器,主要提供CADDWG、DXF、DWT图纸的浏览、简易编辑与转换功能,使用本软件在可以在不用打开AutoCAD的情况下就可以轻松完成图
DWG to WMF Converter MX
4.98 MB/2020-08-17DWGtoWMFConverterMX是一款可以将DWG直接转换为WMF,DXF到WMF和DWF到WMF的工具,它容易快速的转换DWG,DXF和DW
cad转pdf转换器
50.6 MB/2020-08-17互盾cad转pdf转换器主要提供CAD、DWG、DXF、DWT图纸的浏览、简易编辑、转换等实用功能,软件可以在不同的视图下浏览图纸,支持简易的编辑工作,最有特色的功能是提供DWG、
DWG to Image Converter MX
5.25 MB/2020-08-17DWGtoImageConverterMX一款无需AutoCAD软件,可以将DWG直接转换为PDF,DXF到图像和DWF到光栅图像文件,它能够快速的转换DWG,DX
中望CAD2015
247.68 MB/2020-08-17中望CAD2015融入了以“安全漏洞抓取、内存池优化、位图和矢量图混合处理”等多项可以极大提高软件稳定性和效率的中望正在申请全球专利的独创技术,新增了众多实用的新功能
caxa电子图板
967 MB/2020-08-17caxa电子图板2015是一款工程设计专业绘图工具和辅助设计工具。北京数码大方科技有限公司(CAXA)是中国领先的CAD和PLM软件供应商,拥有完全自主知识产权的系列化的CAD、C
浩辰CAD 2015
132.77 MB/2020-08-17浩辰CAD2015专业版作为全球极少数掌握CAD核心技术的世界级品牌,浩辰CAD凭借国际领先的产品品质,被业界誉为设计领域的成熟“Office”,荣获2010年世界知识产权组织(WIPO)版权
纬衡CAD2009
43.03 MB/2020-08-17纬衡CAD2009是一款国产CAD软件。纬衡CAD2009适用范围:可广泛应用于各种行业中的设计及绘图,包括建筑设计、市政规划、石油化工、电子、机械、汽车制造、航空航天、室内设计、服装设计等。
ABViewer
天正电气
纬衡CAD2009
CAD快速看图
CAD迷你编辑器
cad转pdf转换器
DWG to Image Converter MX
DWG to WMF Converter MX
AutoCAD2016
够力七星彩奖表
凤凰彩票平台ApP软件下载
kk欢乐斗地主安卓版
新澳2025正版资料
澳门6合和彩官网下载
六盒宝典
天天彩澳门天天彩
新澳门彩单双走势
够力奖表助手下载安装2025
您可能感兴趣的专题
男生必备
男生们看过来!
安卓装机必备
女生必备
女生必备app是拥有众多女性用户的手机软件,作为一个女生,生活中像淘宝、京东这类线上购物软件可以说是少不了的,小红书这种穿搭、化妆分享平台也很受欢迎,类似于西柚大姨妈、美柚这种专为女生打造的生理期app更是手机必备,还有大家用的最多拍照美颜app是绝对不能忘记的,除此之外对于一些追星女孩来说,微博也是一个必不可少的软件。超多女生必备软件尽在下载吧!
迅雷看看使用教程
迅雷看看播放器是一款多功能在线高清多媒体视频播放器,支持本地播放与在线视频点播,采用P2P点对点传输技术,可以在线流畅观看高清晰电影。不仅如此,迅雷看看不断完善用户交互和在线产品体验,让您的工作与生活充满乐趣。
驱动精灵
驱动精灵是一款集驱动管理和硬件检测于一体的、专业级的驱动管理和维护工具。驱动精灵为用户提供驱动备份、恢复、安装、删除、在线更新等实用功能,也是大家日常生活中经常用到的实用型软件之一了。
拼音输入法
对于电脑文字输入,拼音输入法是一种非常受欢迎的输入法,搜狗拼音输入法、百度拼音输入法、QQ拼音输入法、谷歌拼音输入法、紫光拼音输入法、智能拼音输入法等,你在用哪款呢?一款好用适合自己的拼音输入法一定对您平时帮助很大!下载吧收集了最热门国人最喜欢用的拼音输入法给大家。
b站哔哩哔哩怎么使用
很多人都喜欢在b站哔哩哔哩上观看视频,不单是因为可以提前看到一些视频资源,B站的一些弹幕、评论的玩法也是被网友们玩坏了!下面下载吧小编带来了b站哔哩哔哩怎么使用的教程合集!希望能帮到你啦!
抖音短视频app
抖音短视频app,这里汇聚全球潮流音乐,搭配舞蹈、表演等内容形式,还有超多原创特效、滤镜、场景切换帮你一秒变大片,为你打造刷爆朋友圈的魔性短视频。脑洞有多大,舞台就有多大!好玩的人都在这儿!